Porto turistico di Cavo: il bando per la concessione

Il Comune dell’isola d’Elba lancia la gara

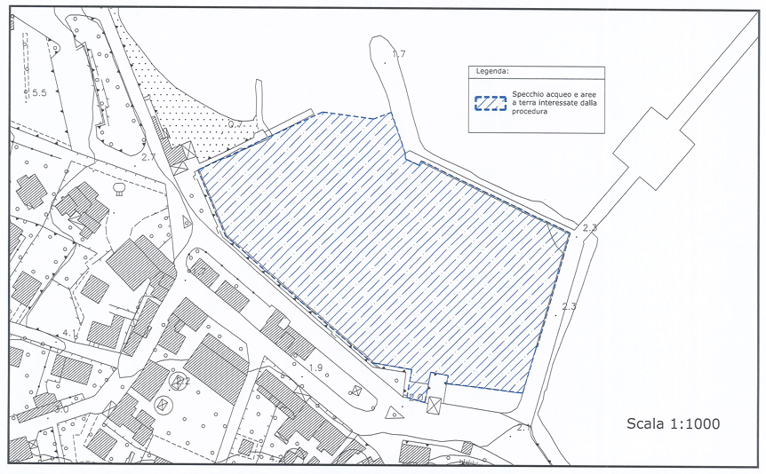
cavo
CAVO - Sul sito del comune di Rio è stato pubblicato il bando per la concessione demaniale marittima dello specchio acqueo di Cavo, isola d'Elba da destinare alla portualità turistica e alla nautica da diporto. L'area attualmente è divisa in due settori, uno occupato dal Circolo Nautico di Cavo in regime di concessione e l’altro gestito dall’Amministrazione Comunale di Rio per un totale di circa 240 posti barca. Concessione scaduta lo scorso 31 Dicembre e poi prorogata e che ora trova nell'applicazione nelle regole della direttiva dell'Europa Bolkestein la necessità di essere assegnata con "procedura di selezione tra candidati potenziali che presenti garanzie di imparzialità e trasparenza e preveda un’adeguata pubblicità dell’avvio della procedura e del suo svolgimento". <img class="size-medium wp-image-110345 align...
Abbonati Effettua il login
Condividi l’articolo
Tags: Nautica, Porti

Articoli correlati

margiotta

Potrebbe interessarti

Porti

Cybersecurity marittima, il porto digitale sotto pressione

Cybersecurity nei porti: intervista al professor Gianluca Dini e analisi dei rischi digitali per shipping e logistica marittima
LIVORNO – La sicurezza delle nuove rotte del potere marittimo non passa soltanto da flotte, infrastrutture e geopolitica. Sempre più spesso si gioca su un terreno invisibile ma decisivo: il…
assoporti
Porti

Assoporti, Petri in visita a Genova: focus su competitività e governance

Il neopresidente incontra Paroli a Palazzo San Giorgio: grandi opere, transizione energetica e coordinamento strategico
GENOVA – Un incontro istituzionale dal forte valore simbolico e strategico, ma anche un’occasione concreta di confronto sulle prospettive della portualità italiana e sul ruolo dei porti genovesi nello scenario euro-mediterraneo.…
PortiShipping

Damietta Alliance, al via maxi terminal container

Damietta Alliance avvia il nuovo terminal: hub da 3,3 milioni TEU, 600 mln $ investiti, focus transhipment Nord Africa Egitto
DAMIETTA – L’Egitto rafforza il proprio posizionamento nei traffici marittimi internazionali con l’avvio operativo del Damietta Alliance Container Terminal, nuovo snodo strategico destinato a incidere sugli equilibri logistici del Mediterraneo…
porta a mare
Nautica

Partecipare al Consorzio per un turismo nautico che fa rete

Livorno aggiungerà un tassello importante al network toscano
LIVORNO – La società Porta a mare, concessionaria del porto turistico, compartecipata da D-marin e Azimut Benetti, fa parte del Consorzio delle Marine della Toscana. Quella di Livorno è una marina…

Iscriviti alla newsletter

Resta aggiornato su tutte le notizie dal mondo del trasporto e della logistica

Iscriviti

Il nostro Podcast

bunkeroil banner